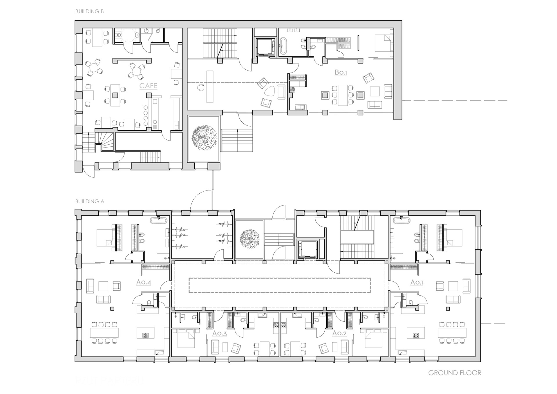
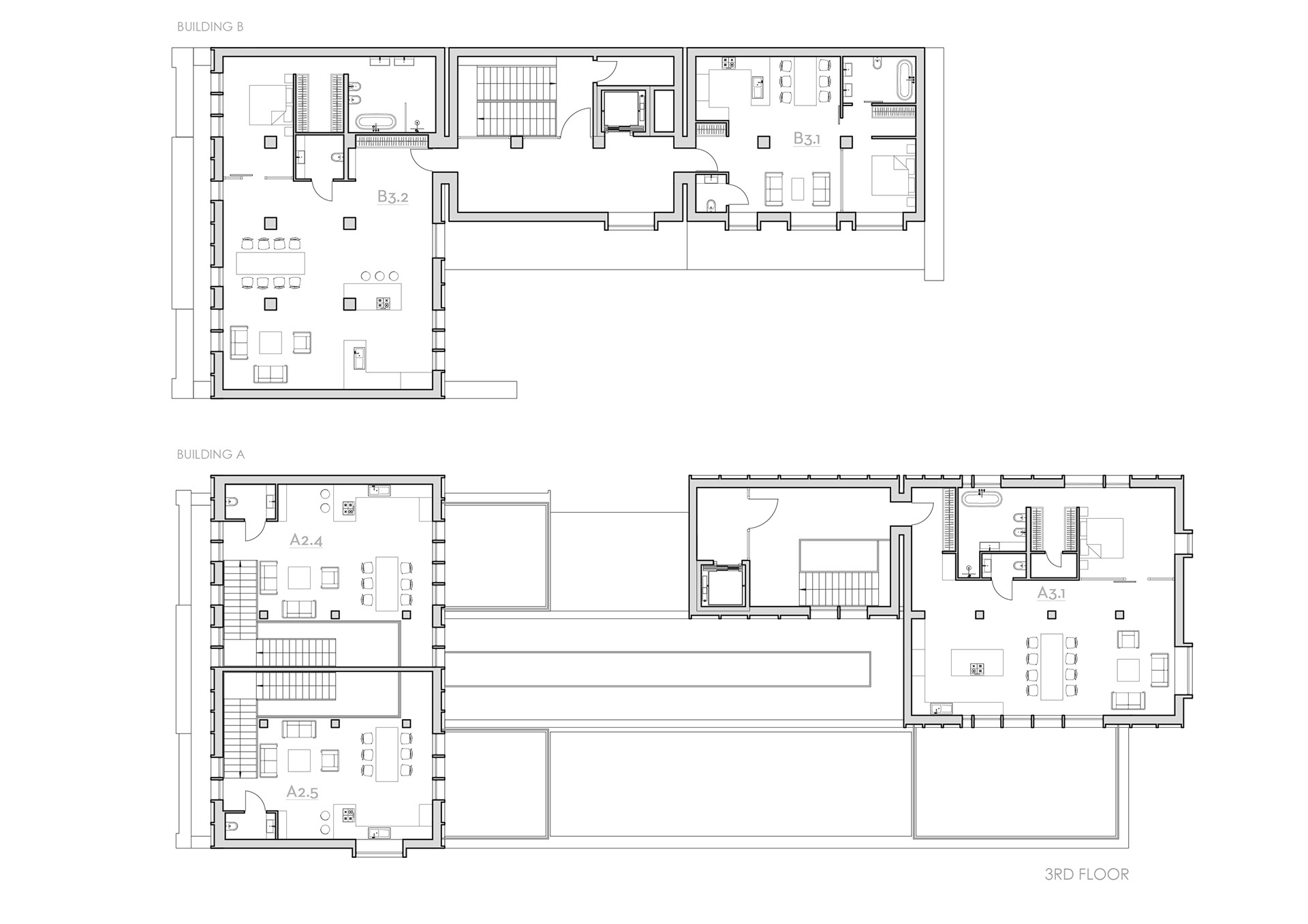
Loft
Architectural competition entry - an adaptation of former industrial buildings in Gdansk for residential purposes.​​​​​​​
Team: Jakub Nanowski and Michał Morzy
Back to Top